Suite Villa Ito Shiokazeann - Ito
Step into a land where ancient shrines meet futuristic cities. Wander Kyoto’s bamboo groves, climb Mount Fuji at dawn, relax in natural hot springs, or taste sushi in Tokyo’s lively markets. Explore Hiroshima’s Peace Memorial, ski in Hokkaido, or snorkel in Okinawa’s turquoise waters. Every region tells a unique story, blending tradition with innovation. Reserve your stay now and uncover the essence of Japan’s culture, landscapes, and unforgettable hospitality waiting just for you.
Suite Villa Ito Shiokazeann
Ito Futo 1317-3007
WiFi
Parking
Animal acceptance
We speak
JA
8.0/10
WiFi
Parking
Animal acceptance
We speak
JA
8.0/10
Set in Ito, 26 km from Shuzen-ji Temple and 41 km from Mount Daruma, Suite Villa Ito Shiokazeann offers a garden and air conditioning. This property offers access to a balcony, free private parking and free WiFi. The property is non-smoking and is situated 29 km from Shuzenji Niji no Sato.
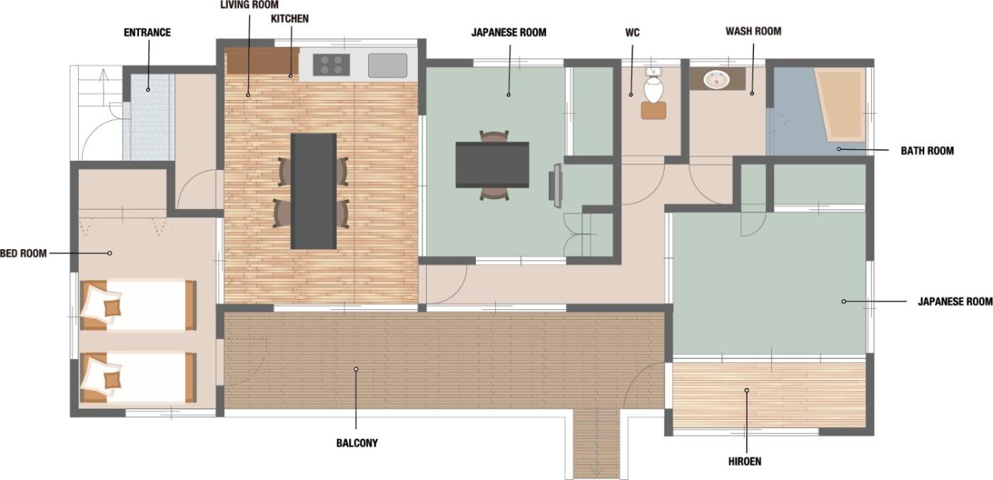
The holiday home with a terrace and garden views has 3 bedrooms, a living room, a flat-screen TV, an equipped kitchen with a microwave and a toaster, and 1 bathroom with a bidet. Towels and bed linen are offered in the holiday home.
For those times when youd rather not dine out, you can choose to cook on the barbecue.
Fuji-Hakone-Izu-kokuritsu-kĹŤen is 47 km from the holiday home. Tokyo Haneda Airport is 122 km from the property.
The hotel day starts from hour 16:00 and ends at 10:00.
This property will not accommodate hen, stag or similar parties.
Holiday Home. This holiday home is comprised of 1 living room, 3 separate bedrooms and 1 bathroom with a bath and free toiletries. Guests will find a stovetop, a refrigerator, kitchenware and a microwave in the fully equipped kitchen. The holiday home also has a barbecue. The air-conditioned holiday home offers a flat-screen TV, a washing machine, tatami, a dining area as well as garden views. The unit offers 2 beds and 4 futons.
Linens, towels and laundry washed in accordance with local authority guidelines
Non-smoking rooms
Pets allowed
Air conditioning
Guest accommodation sealed after cleaning
Free parking
Contactless check-in/check-out
Internet services
WiFi
Property is cleaned by professional cleaning companies
Family rooms
Terrace
WiFi available in all areas
BBQ facilities
Physical distancing rules followed
Fire extinguishers
Smoke alarms
Free WiFi
Parking on site
Non-smoking throughout
Private parking
Parking
Garden
Cashless payment available
Heating
Staff follow all safety protocols as directed by local authorities
